
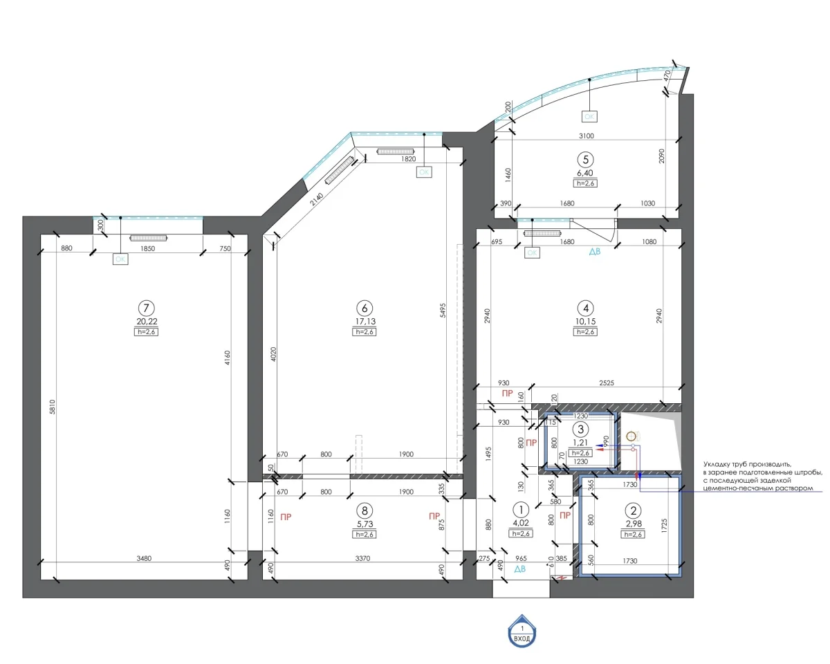
План монтажа/демонтажа
План демонтажа/монтажа — чтобы начать перепланировку согласно расстановке мебели
Закажи планировку квартиры в Москве и МО




Ниже — реальные типы файлов, которые вы получаете. Это не просто «красивая картинка», а рабочие материалы для быстрого начала ремонта.

План демонтажа/монтажа — чтобы начать перепланировку согласно расстановке мебели

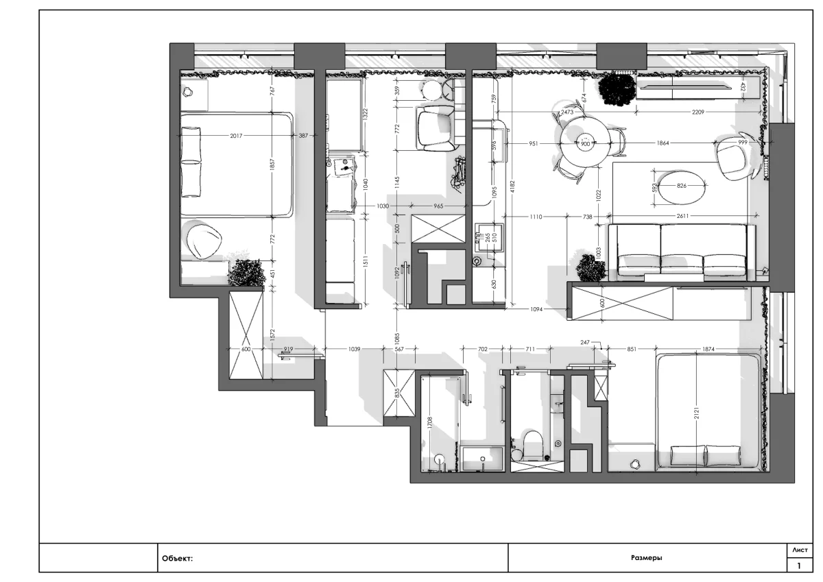
План с расстановкой и размерами — мебель, проходы и привязки в миллиметрах для проверки эргономики. Для ключевой мебели задаём габариты и привязки к стенам и окнам. Вы заранее понимаете, что шкаф, кровать и кухня встанут без сюрпризов.

Изометрия помогает увидеть квартиру в объёме: высота мебели, видимые проходы, открывание дверей и створок. Так проще почувствовать, как будет «жить» пространство.
«Уютный Квадрат» — студия, которая делает полноценные дизайн-проекты квартир: от планировки квартиры до полноценного дизайн-проекта. По вашему запросу мы берем на себя не только картинку, но и реализацию — ведём авторское сопровождение и комплектацию (светильники, двери, плитка, напольные покрытия, декоры и мебель).
Экспресс-планировка за 3 дня - это наш отдельный продукт: позволяет начать ремонт без критических ошибок и при необходимости перейти в полный дизайн-проект. Сопровождаем реализацию: согласование с подрядчиками, комплектация (материалы, мебель, свет), контроль исполнения проектных решений на объекте
Каждая планировка квартиры — отдельный объект. Кликните по кейсу, чтобы посмотреть все варианты и связанные чертежи.

_стр_4-optimized.webp)

_стр_3-optimized.webp)
Так выглядят дизайн интерьера, когда мы продолжаем работу после планировки квартиры: полноценный дизайн-проект, материалы, свет и мебель в одной картинке.



